Objektbeschreibung
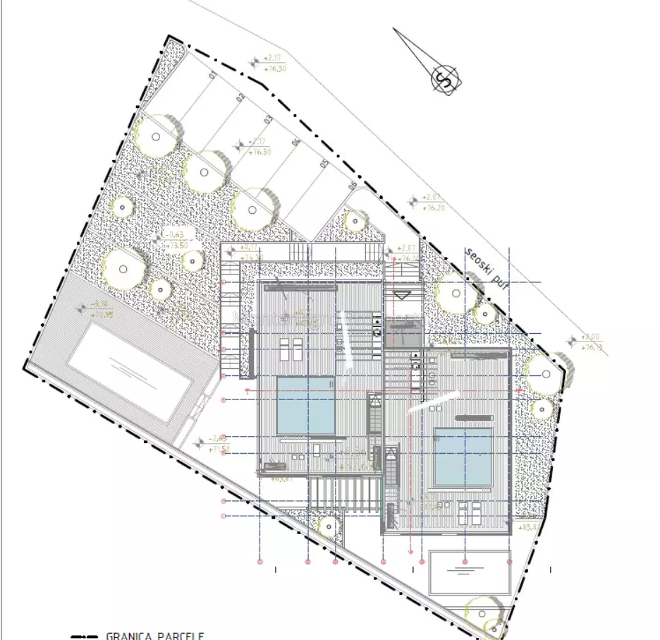
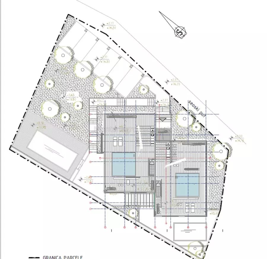
Zum Verkauf steht ein Grundstück mit einer Fläche von 782 m² in Petrovac, oberhalb der Hauptstraße gelegen.
Die Entfernung zum Meer beträgt etwa 1,4 km zu Fuß, die Höhenlage des Grundstücks liegt bei ca. 65 m über dem Meeresspiegel.
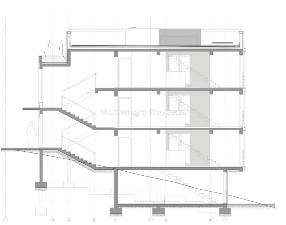
Im Jahr 2008 wurde ein Bauprojekt für ein Gebäude mit einer Bruttofläche von 692,4m² genehmigt. Ebenfalls wurden die kommunalen Bauabgaben im Jahr 2008 bezahlt.
Genauer gesagt:
-
Bruttofläche: 586,41 m²
-
Geschlossene Terrassen: 82,36 m²
-
Offene Terrassen: 23,27 m²
Das Projekt wurde nicht vollständig umgesetzt, jedoch existiert bereits ein Fundament, das gemäß dem Projekt von 2008 errichtet wurde.
Zufahrtsstraße und Stromanschluss befinden sich an der Grundstücksgrenze.
